VENDESI

A circa 5 Km da Cecina

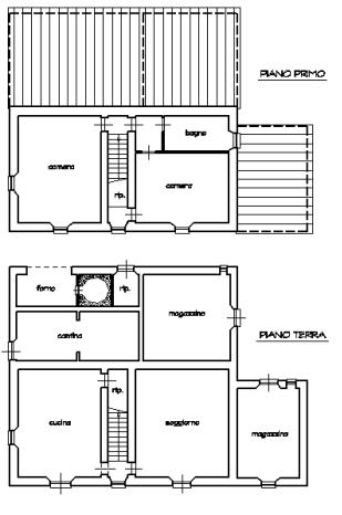
Casa colonica ristrutturata con circa 9 ha di terreno

   690.000  

rif. Osemont  

 

 

 

PLANIMETRIA